Beschrijving
Gezinswoning met 3 slaapkamers, moderne keuken en garage gelegen op fraai hoekperceel. Voorzieningen zoals een supermarkt, dorpscentrum, postkantoor en een sportschool zijn gelegen op loopafstand van de woning. Via de N293 is Roermond te bereiken op circa 15 minuten rij-afstand.
Indeling
Begane grond:
Middels hal/entree betreedt men de woning en heeft men toegang tot het toilet, meterkast, trapopgang, trapkast en de woonkamer. De hal en woonkamer zijn recent v.v. nieuwe laminaatvloeren. De woonkamer heeft veel lichtinval middels een raampartij aan de voor- en achterzijde. Via de woonkamer kan men de gesloten keuken bereiken v.v. inbouwapparatuur. o.a: Inductie kookplaat, vaatwasser, vriezer, koelkast, combi-oven en wasmachine aansluiting. De keuken biedt toegang tot de achtertuin.
Eerste verdieping:
Middels de overloop zijn drie ruime slaapkamers en de badkamer te bereiken:
Slaapkamer 1: ca. 14m2 v.v. laminaatvloeren, rolluiken en balkon.
Slaapkamer 2: ca. 13 m2 v.v. laminaatvloeren en rolluiken.
Slaapkamer 3: ca. 7 m2 v.v. laminaatvloeren en rolluiken.
Op deze verdieping bevindt zich tevens de badkamer v.v. toilet, wastafel en douche.
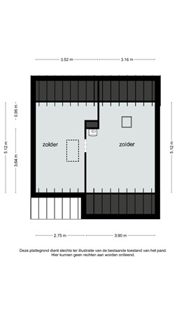
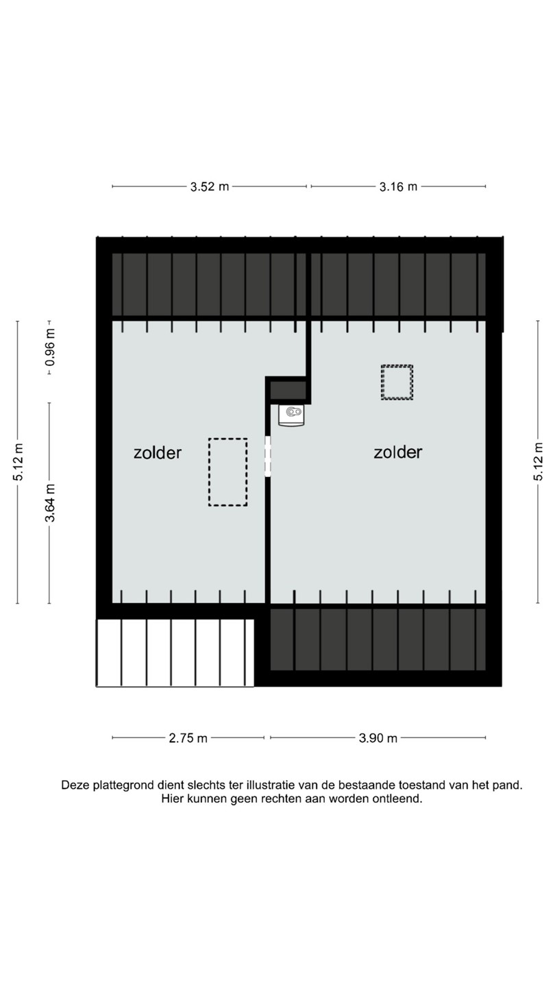
Zolder:
Via een vlizotrap is de bergzolder te bereiken, hier is tevens de CV-opstelling (2024, eigendom) geplaatst.
Tuin:
Fraaie achtertuin gelegen op het oosten v.v. ruim terras met zonnescherm, oprit en vrijstaande garage. De voortuin is volledig bestraat en biedt ruimte voor 1 à 2 auto’s.
De garage is voorzien van een kantelpoort en water/ elektra aansluiting.
Bijzonderheden:
• Volledig voorzien van hardhouten kozijnen met dubbele beglazing.
• 1e verdieping voorzien van rolluiken.
• Energielabel D.
• Na het afgeven van het energielabel is de zolder na-geïsoleerd.
Heeft u interesse of vragen dan kunt u contact opnemen met ons:
Uw makelaar: Joeri Hendrix
Tel: + 31 6 42 66 88 14
Deze informatie is met de nodige zorgvuldigheid samengesteld. Onzerzijds wordt echter geen enkele aansprakelijkheid aanvaard voor enige onvolledigheid, onjuist of anderszins, dan wel de gevolgen daarvan. Indien bepaalde informatie voor u van wezenlijk belang is dan adviseren wij u deze op juistheid te controleren.
Alle opgegeven maten en oppervlakten zijn indicatief. Koper is te allen tijde gerechtigd voor eigen rekening een bouwkundige keuring te (laten) verrichten dan wel andere adviseurs te raadplegen teneinde een goed inzicht te verkrijgen over de staat van onderhoud.