Beschrijving
Klassieke villa op royaal groen hoekperceel van 1786 m2
Aan de rustige en residentiële Rozenlaan in Lanaken wacht een statige open bebouwing op een nieuwe toekomst. Deze villa uit 1991 biedt een zee aan ruimte, een doordachte indeling en een perceel dat royaal uitnodigt tot buitenleven. Met wat opfrissing verandert dit pand in een warm, hedendaags thuis waar comfort en potentieel hand in hand gaan.
De woning werd opgetrokken in 1991 en beschikt over een royale bewoonbare oppervlakte van 276 m², verdeeld over twee bouwlagen. Dankzij de open bebouwing geniet elke ruimte van een mooie lichtinval. De totale perceeloppervlakte bedraagt 17a 86ca.
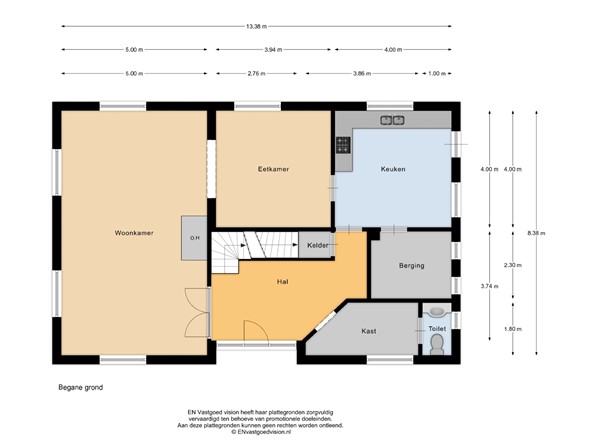
De begane grond wordt gekenmerkt door een praktische indeling met ruime leefvertrekken. Centraal ligt de inkomhal met toegang tot de vestiaire, het gastentoilet en een trap naar de bovenverdieping. Aan de linkerzijde bevindt zich de royale woonkamer van 32 m². Deze rechthoekige ruimte strekt zich uit over de volledige diepte van de woning en biedt plaats voor gezellige zithoek. Via de zithoek loop je door naar de eetkamer, die direct grenst aan de keuken. Deze keuken van 16 m² is functioneel ingericht en kijkt uit op het achterliggende perceel. Verder vinden we op het gelijkvloers een keldertoegang en een handige berging die gebruikt wordt als wasruimte. Alles samen vormt dit een praktische en vlotte indeling, ideaal voor wie houdt van structuur én comfort.
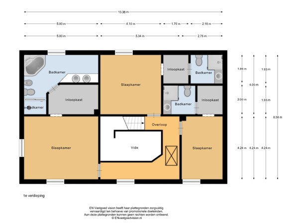
De eerste verdieping is volledig afgestemd op rust en privacy. De woning telt hier drie volwaardige slaapkamers van respectievelijk 21,20 m², 16,40 m² en 11,70 m². Elke kamer is voorzien van een eigen inloopkast, wat niet alleen luxe maar ook efficiëntie toevoegt. Opmerkelijk is de aanwezigheid van maar liefst drie badkamers, elk met eigen sanitair en comfort. De grootste badkamer beschikt over een dubbele wastafel, een ligbad, douche en toilet. De twee andere badkamers zijn ingericht met douche, toilet en wastafel, ideaal voor grotere gezinnen of gasten. De nachthal loopt rond een open vide, wat zorgt voor een luchtig en open gevoel in het hart van de woning.
De woning beschikt over een kelder van 32 m², bereikbaar via de trap in de hal. Deze ruimte is ideaal voor het opbergen van voorraad, seizoensmateriaal of als wijnkelder. De aanwezigheid van een degelijke kelder benadrukt de praktische insteek van deze woning.
Het perceel zelf is een absolute troef. Met een oppervlakte van bijna 18 are biedt het mogelijkheden te over voor tuinliefhebbers, gezinnen met kinderen of wie droomt van een ruim terras met zicht op groen. De noordwestelijke oriëntatie garandeert zonnige namiddagen en avonden in de tuin. Hier kunnen toekomstige eigenaars in alle rust genieten van lange zomeravonden of knusse herfstnamiddagen, beschut van inkijk en omgeven door groen.
Verder is er een vrijstaande garage met een extra carport aanwezig. Samen goed voor 67 m² aan bijkomende overdekte ruimte. Ideaal voor wie meerdere wagens heeft of een hobbyruimte zoekt. De rolluiken verhogen het wooncomfort en bieden extra verduistering en privacy.
De ligging aan de Rozenlaan combineert rust met bereikbaarheid. Op amper 143 meter vind je het dichtstbijzijnde openbaar vervoer, en binnen een straal van 2 kilometer zijn zowel scholen als restaurants bereikbaar. De oprit naar de snelweg ligt op 5,1 kilometer, wat zorgt voor een vlotte verbinding richting Maastricht, Genk of verder. Bovendien ligt de woning vlakbij Zangersheide en La Butte Aux Bois, wat garant staat voor wandelmogelijkheden, wellness en gastronomie op topniveau.
Deze ruime villa met op te frissen interieur is ideaal voor wie op zoek is naar een woning met veel ruimte, een sterke basisstructuur en een royaal perceel in een groene, rustige omgeving.
Interesse in deze woning?
Deze woning wordt aangeboden in samenwerking met Swevers makelaardij.
U kunt contact opnemen met Dassen & Hendrix Makelaardij per e-mail of met Joeri Hendrix: +31 6 42 66 88 14.
Of met Swevers makelaardij: +32 11 255 155