Beschrijving
Nieuwbouwproject op steenworp afstand van Sittard
Wonen aan een rustig woonerf op enkele minuten afstand van Sittard? Dan is dit nieuwbouwproject aan de Oligstraße in Selfkant-Tüddern wellicht iets voor u. Dit project bestaande uit 4 energiezuinige levensloopbestendige woningen is gelegen op loopafstand van de Nederlandse grens met directe toegang tot het bosgebied “Tüddernder Fenn’’ en het winkelcentrum ‘’In der Fummer’’ in Tüddern.
Via de ringweg B52 is de aansluiting met de snelweg A2 binnen enkele minuten te bereiken waardoor steden zoals Maastricht, Heerlen en Roermond binnen ca. 30 minuten rij-afstand te bereiken zijn.
Begane grond:
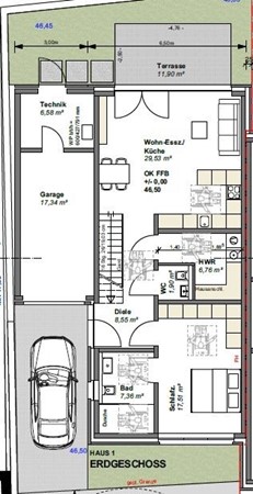
Middels de hal/ entree heeft men toegang tot een slaapkamer (ca. 17,5 M2) met badkamer en-suite (ca. 7,3 M2) aan de voorzijde van het huis. Deze ruimte kan eventueel ook als kantoor aan huis ingericht worden of als extra zithoek. Aansluitend heeft men via de hal toegang tot een gastentoilet, de trapopgang, een bijkeuken en de woonkamer met open keuken v.v. grote pui en openslaande tuindeuren. Middels de woonkamer bereikt men via de trapopgang de eerste verdieping.
De woonkamer beschikt over veel lichtinval middels de grote raampartij met openslaande tuindeuren aan de achterzijde. Hierdoor ontstaat een fraai tuincontact.
Via de achteruin en middels de voorzijde heeft men toegang tot de garage en technische ruimte ca. 24 M2.
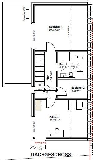
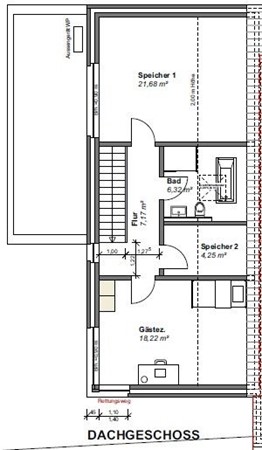
Eerste verdieping:
De eerste verdieping beschikt over over hoge plafonds, een ruime overloop, een tweede badkamer, berging en 2 ruime slaapkamers (ca. 18 M2 en 22 M2). De badkamer biedt ruimte voor een toilet, badmeubel, douche en een ligbad.
Tuin en perceel:
De woning beschikt over een eigen oprit en voortuin, de patiotuinen zijn verschillend van oppervlak afhankelijk van het huisnummer. De tuinen worden opgeleverd v.v. bestrating zoals afgebeeld.
Bijzonderheden woning:
- Gelijkvloers wonen mogelijk.
- 2 Badkamers waarvan een voorzien van douche, badkamermeubel & toilet. De badkamer op de eerste verdieping is voorzien van ligbad, douche, badkamermeubel en toilet.
- Gelegen aan een rustige privéweg.
Technische gegevens en oplevering:
- De woningen worden verwarmd middels warmtepompinstallaties.
- Voorbereiding voor een PV-installatie zijn bij oplevering aanwezig.
- Voorbereiding voor een laadpunt ten behoeve van een elektrische auto is bij oplevering aanwezig.
- Voorzien van kunststof kozijnen met HR+++ beglazing.
- De woningen worden opgeleverd inclusief: Badkamer, sanitair, tegels in de bijkeuken, bestrating aan de voor- en achterzijde.
- Volledig voorzien van vloerverwarming.
- Voorzien van inbouw rolluiken rondom.
Bijzonderheden:
- Voor dit object geldt een kopers-courtage van 2,38 % incl. 19 % MWST.
- Deze informatie is met de nodige zorgvuldigheid samengesteld. Onzerzijds wordt echter geen enkele aansprakelijkheid aanvaard voor enige onvolledigheid, onjuist of anderszins, dan wel de gevolgen daarvan. Indien bepaalde informatie voor u van wezenlijk belang is dan adviseren wij u deze op juistheid te controleren.
- Alle opgegeven maten en oppervlakten zijn indicatief. Koper is te allen tijde gerechtigd voor eigen rekening een bouwkundige keuring te (laten) verrichten dan wel andere adviseurs te raadplegen teneinde een goed inzicht te verkrijgen over de staat van onderhoud.
- Dit object wordt aangeboden in samenwerking met onze Duitse partner Immobiliën Hausmann.