Beschrijving
Let op deze woning ligt net over de grens in Duitsland!
Volmühle 26, Selfkant-Tüddern (DE)
Gelegen aan de Nederlandse grens vindt men deze vrijstaande gezinswoning. Deze rustige kindvriendelijke buurt ligt aan bosrand van Selfkant-Tüddern. Het ruime perceel heeft geen achterburen en een vrij uitzicht. Supermarkten en het dorpscentrum zijn gelegen op enkel minuten fiets-afstand van de woning en het centrum van Sittard is tevens binnen enkele minuten te bereiken. Snelwegen zijn snel te bereiken middels de B56, zo zijn steden zoals Maastricht, Aken, Roermond en Düsseldorf binnen 50 minuten te bereiken.
Indeling:
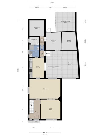
Bij binnenkomst in de ontvangsthal heeft men toegang tot de ruime woonkamer voorzien van aparte eetkamer. De keuken is gelegen achter de woonkamer en voorzien van alle gemakken zoals koelkast, kookplaat, vaatwasser en inbouw afzuigkap (2021). Achter de keuken bevinden zich de eerste badkamer voorzien van wastafel en inloopdouche met separaat toilet.
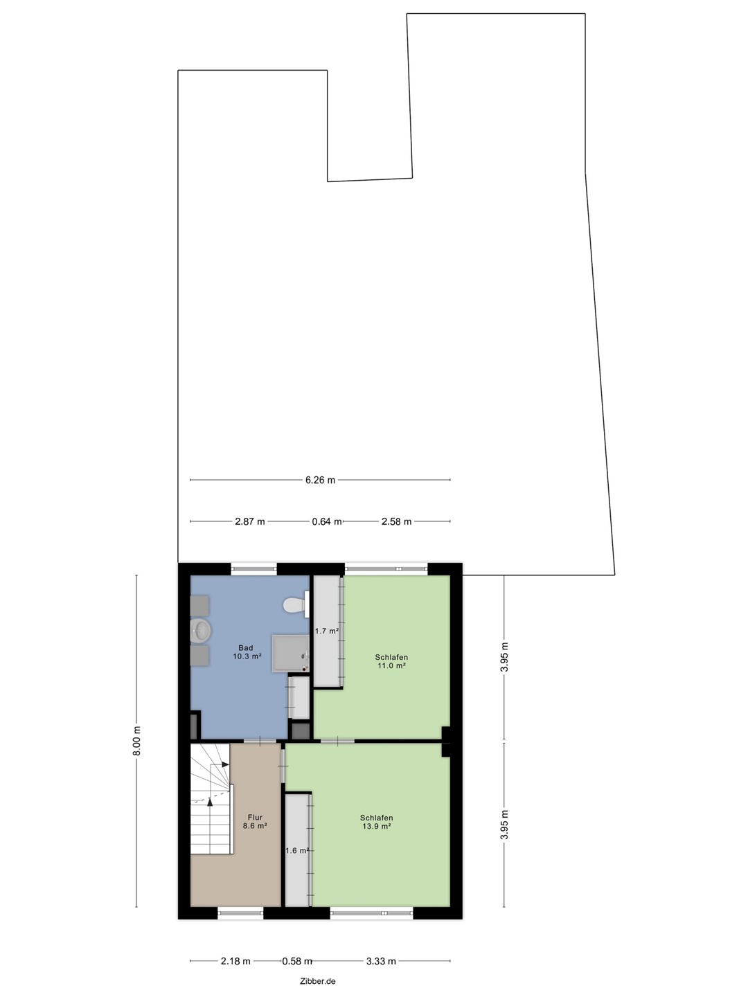
Op de eerste verdieping bevinden zich twee ruime slaapkamers voorzien van laminaatvloeren en een tweede badkamer met beschikking over een toilet, douche en wastafel.
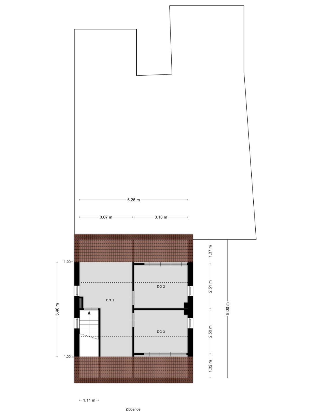
Middels een vaste trap is de zolderverdieping te bereiken.
Aan de achterzijde van de woning bevindt zich nog een carport, ruime tuinberging, terrasoverkapping en een tweede separate tuinberging.
Bijzonderheden:
- Per 01-10-2025 beschikbaar.
- Woonoppervlakte: 135 m2.
- Perceel: 1040 m2.
- Voorzien van rolluiken.
- Oprit voor 2 auto’s en carport.
- Huurprijs excl. G/W/L: €1300,-.
- Waarborgsom: €2600,-.
- Huurvoorwaarde: er is minimaal 3x bruto inkomenseis van toepassing op deze woning. (Partnerinkomen wordt voor 50% meegeteld).
- Dassen & Hendrix Makelaardij treedt bij deze woonruimte op als verhuurmakelaar voor de verhuurder
- Deze omschrijving is zorgvuldig samengesteld. Er kunnen echter geen rechten aan ontleend worden.
- Wij werken conform het toewijzigingsprotocol van Pararius.